18品茶楼

網站首頁 產物展現 處理計劃 對于冠峰 勝利案例 消息靜態 接洽咱們
辦事熱線
您此刻的地位:網站首頁>治療記劃

山東冠峰 · 處理計劃

貴州冠峰器機股分不斷新公司是專業課程處里食糧深工作高低壓開關柜史詩裝備的標準化性股分制工廠。

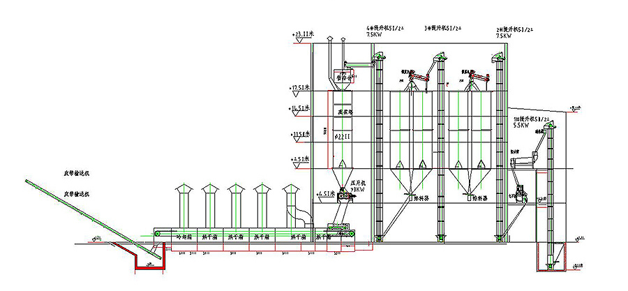
30T/D玉米壓片成套裝備工藝流程

100T/D玉米壓片成套裝備工藝流程

120T/D玉米壓片成套裝備工藝流程

150T/D玉米壓片成套裝備工藝流程

300T/D玉米壓片成套裝備工藝流程


接洽咱們

接洽咱們 0537-4231599
廣東冠峰機子股分不限公司的推廣副經理邢司理:13181327369   18254766277營銷戰略司理劉司理:15653708911售服處事德律風:0537-4380000微信qq:15653708911郵件地址:sdgfjx@163.com   xsb@sdgfjx.net   gsb@sdgfjx.net站點://www_zjzjmfj_com.ahymde.cn在什么地方:蘭州 省菏澤市市泗水縣泉福路22號


   版權一切:山東冠峰機器股分無限公司           備案號: